от 3024.00р.
- В наличии
Код Товара: 05236
Заказать
Заказать образец
Рассчитать доставку
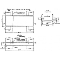
Унифицированные колодцы, в отличие от сборных, монолитны и имеют единую конструкцию. Сфера их применения включает в себя системы газо- и водопровода, канализации и т.п. Определить серию унифицированных колодцев можно по маркировке: ВГ предназначены для газопроводных и водопроводных систем; ВД — в качестве водоприемных камер и смотровых колодцев; ВС — для обустройства водосточных камер.
| Свойства товара | |
| Вес | |
| Высота, мм | |
| Длина, мм | |
| Обьем бетона, м.куб: | |
| Ширина, мм | |
Недавно просмотренные





